
U, Škuc Gallery 40th Anniversary: Exhibition; Škuc Gallery; April 23 - May 6, 2018
U
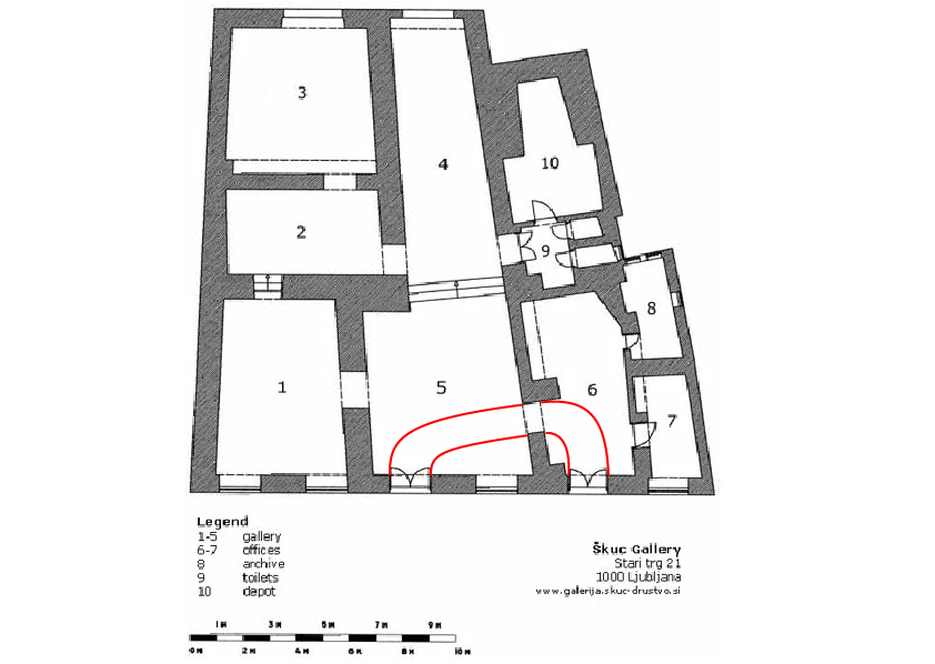
2018
Installation,
intervention
Rigips, wood, plaster, colour and LED lamps.
Avg. 1000 x 130/180 x 240 cm
Škuc Gallery 40th Anniversary: Exhibition. Nika Špan: U
Škuc Gallery, Ljubljana
Curated by Vladimir Vidmar and Tjaša Pogačar.
Škuc Gallery 40th Anniversary: Exhibition. Nika Špan: U
Text by Vladimir Vidmar SI / EN
Related:
+ Škuc Gallery 40th Anniversary: Institution: Case Study, 2018






